トップページ お問い合わせ サイトマップ
 
 
 
トップページ > バリアフリー住宅・リフォームのヒント・実例・商品など > 実例

高村邸

 

(株)地域総合設計
佐伯博章



外観
 
 

対象者は、クモ膜下出血によって病院で右片マヒが残ったまま自宅へ戻ったが、若い時に建てた住宅はバリアが多く、ネガティブな生活を余儀なくされた。若い時から活動的な生活を送っていたので、たとえつたい歩き、車椅子利用生活になってもなるべく自立した生活を送るために古い家を解体して新築することになった。また、近所に一人住まいしている長女(独身)が必要な時、必要な介助を提供したいことから階層別同居をすることになった。南側の隣地に建物があるために、1階は日当りが悪く、日中家にいることが多い両親が住む階は2階に設けた。

 
 


 玄関

玄関ホール、右手前に2階へ上がるエレベーターがある。

玄関からエレベーター乗り場(左隅)を見る
  親子が共同利用するために、車椅子の利用を考慮して段差をとっていない。 3枚引戸の玄関戸はいざという時に開口幅が広くとれる。

 エレベーター

EV 1
EV 2
  エレベーターの操作ボタンの位置、高さ、かごの大きさについてモデルルームで確認をとっているところ。

 便所

便所 1

便所 2
 

便所 3
公的機関のモデルルームを利用して便所での動作をシミュレーションしている一コマ。 今度は現場でモックアップ模型を作って動作と寸法の確認を行なった。   そうして完成した便所。寝室からも直に入れることもあって、本人、家族の評判は上々である。

 洗面・浴室

洗面・浴室
右の洗面器は昇降可能式。中央はちょっとした洗い物をしたり、雑巾バケツの水を流したりする時に便利な「掃除用流し」。左端の洗濯機置場は車椅子で使うことを考慮して、あらかじめ掘り込んである。

浴室 1
 

浴室 2

浴室 3
  対象者、家族皆が使う浴槽はモックアップ模型を作って利用者全員が満足できる檜浴槽をオーダメイドした。浴槽の縁の手すりは、出入り動作の補助や浴槽内での体位安定に役立っている。(実用新案登録済み)

 台所

台所 1
 

台所 2
  若い頃から料理好きだったので、車椅子を使ってでも料理を作りたい。そんな願いのもとに、モデルルームでシミュレーションを行なった。

台所

台所
昇降可能な調理台、リモートスイッチのレンジフードは車椅子に乗っても調理が 可能である。



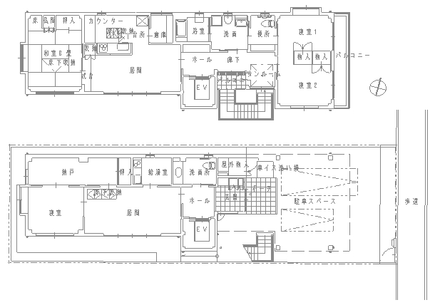
1階、2階平面図


 

NPO法人高齢社会の住まいをつくる会

高住会とは?

会の概要
入会について
関連書籍など
バリアフリー住宅・リフォームのヒント・実例・商品など
住まいづくりの流れ
ワンポイントアドバイス
実例
おすすめ商品
制度を使った住宅改修
制度の紹介
改修の事例
住宅相談のご案内
個別相談
ネット相談
バリアフリー住宅の設計者紹介
設計者紹介
イベントのご案内
セミナー、見学会など
リンク他