トップページ お問い合わせ サイトマップ
 
 
 
トップページ > バリアフリー住宅・リフォームのヒント・実例・商品など > 実例

惣田邸

 

(株)地域総合設計
佐伯博章



外観
 
 

不慮の交通事故に見舞われたために、これまでの住まいに新たな機能を付加し、地域に住み続ける工夫をした家である。母屋はパーティ空間として残し、新築建物とデッキで繋いだ。次に車椅子の生活が中心になるため、ご本人、奥様、病院でリハビリテーションを担当した医師、PT、OT、そして福祉用具製作メーカーに参加を呼びかけ、ベッドサイド、水廻り空間の配置や寸法決定を行った。この家は加齢による身体機能の低下を視野に入れるなど大きな発想をされた家族の力とその意向をよく理解して住宅づくりに参加した関係チームの連携によって造られた。その動きは、最新高齢者・障害者の家づくりで必要とされている「ハウスアダプテーション」そのものであった。




増築前

増築前 全景
増築前 母屋
築後70有余年たつ母屋に新たな住まいを隣接させることになった。 高い天井、床の間の横にある書院、深い味わいのある床柱、、、。古民家としての風格がある。

増築前 縁側 便所
増築前
  風格のある古民家も障害者や高齢者には使いづらい部分も多い。この部分を改造して母屋に住み続けることが可能か、それが無理ならば新たに住まいを作るか、の検討を行なった。


増築 完成後

 玄関

玄関
  玄関から居間を見る。下足箱下段の出っ張りは脱着靴時に体を安定させるために使う、手すりとして設けた。

 居間

居間
  高い吹き抜け、木材を多用した居間はのびのびと寛げる空間にすることをねらった。

 寝室

寝室
  天井には洗面所、便所、浴室へ移動するリフトレールを埋め込んでいる。

 便所

トイレ1
 

トイレ2

トイレ3
  天井走行リフト〜トイレキャリー〜排泄〜後始末のシミュレーションを行なった。
トイレキャリーの取っ手が便器のロータンクにあたって(トイレ3)、大柄なご主人は便器からはみ出すことが分った(トイレ2)。→解決策として、ロータンクを横の壁に付け替えた。(完成写真)

便所
 

便所から浴室

 浴室

浴槽1
  吊り具の選定〜浴槽に下りる位置までをモックアップ模型を作ってシミュレーションを行なった。

浴槽2
 

浴槽3

浴室
  介護者スペース、洗い場スペース、ストレッチャー置場を考慮すると一般家庭の浴槽よりもかなり大きな浴室になった。しかしながら、大勢で一度に入浴が出来ることから、外孫が大変お気に入りのようすである。


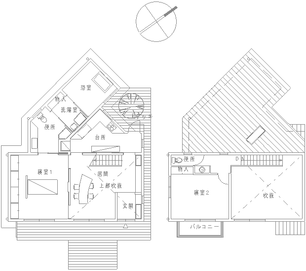
1階平面図 2階平面図

 

NPO法人高齢社会の住まいをつくる会

高住会とは?

会の概要
入会について
関連書籍など
バリアフリー住宅・リフォームのヒント・実例・商品など
住まいづくりの流れ
ワンポイントアドバイス
実例
おすすめ商品
制度を使った住宅改修
制度の紹介
改修の事例
住宅相談のご案内
個別相談
ネット相談
バリアフリー住宅の設計者紹介
設計者紹介
イベントのご案内
セミナー、見学会など
リンク他