トップページ お問い合わせ サイトマップ
 
 
 
トップページ > バリアフリー住宅・リフォームのヒント・実例・商品など > 実例


MK邸

 

岡田安平建築設計事務所
岡田安平

岡田安平の紹介


外 観
MK邸
所在地 :東京都八王子市
築年数 :新築(1996年)
規模構造:木造2階建て

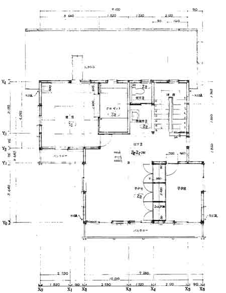
設計のポイント:当面、高齢化などの心配はないものの、将来の使い方の変化を考えて2階プランはなるべくフリーにし、納戸などの間仕切り壁は構造上の荷重をかけないよう考えた。
将来は壁を簡単に取り払うことができる。

2階内部



2階は柱、梁などを表しにし、壁の少ないフリーな空間とした。右下に見えるのは可動の間仕切り用の収納家具。
はしごの後ろの間仕切り壁は柱のない壁で、将来取り払うことも可能。
上部はロフトとハイサイドライト。




2階平面図


 

NPO法人高齢社会の住まいをつくる会

高住会とは?

会の概要
入会について
関連書籍など
バリアフリー住宅・リフォームのヒント・実例・商品など
住まいづくりの流れ
ワンポイントアドバイス
実例
おすすめ商品
制度を使った住宅改修
制度の紹介
改修の事例
住宅相談のご案内
個別相談
ネット相談
バリアフリー住宅の設計者紹介
設計者紹介
イベントのご案内
セミナー、見学会など
リンク他