トップページ お問い合わせ サイトマップ
 
 
 
トップページ > バリアフリー住宅・リフォームのヒント・実例・商品など > 実例

M邸改修

 

S。R。C。O。
大河内明彦(昭宏)

大河内明彦(昭宏)
の紹介


 建築概要    

建物形式:持ち家一戸建て
対象者:男性(要支援)
工事費:約700万円(補助制度・融資制度利用なし)

バリアフリー設計までの経緯
交通事故被害者
びまん性軸索損傷、左前腕骨骨折、左下腿骨骨折により、左上肢機能障害3級、両下肢機能障害3級、障害者手帳等級2級、高次元機能障害もあり、2年間の闘病生活を経由して、自宅に戻る。
Tリハ病院、OT・PT・STとのヒアリングおよび計画の説明/調整を実施

バリアフリー設計の実施内容
室内外とも自走式車椅子生活としている。ただし、注意力の不足などから、全て監視声掛けレベルにて介助が必要な事を前提とした。意外にも家族関係が、良くなく、父親が主たる熱心な援護者となっているが、母親は、施設収容を願っており、ほとんど関わりたがらない状況だった。故に、本人のできることを出来るだけ増やし、自宅での生活に於いても本人の息抜きの出来る空間を持つことが必要と考え、WCへの最短距離のアプローチの確保、シャワー浴の確保、木製デッキと、外出時の介助軽減のためのスロープ、を提案、ほぼ実現されたが、玄関ドアの変更と玄関段差の解消は、実現されなかった。(明確な説明はなかった)


 
 改修前    
  




 改修後  







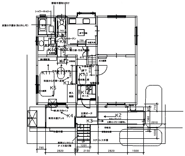
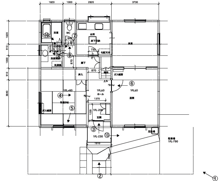
 平面図    

   

改修前1階平面図  



改修後1階平面図  

NPO法人高齢社会の住まいをつくる会

高住会とは?

入会について
会員紹介
関連書籍など
バリアフリー住宅・リフォームのヒント・実例・商品など
住まいづくりの流れ
ワンポイントアドバイス
実例
おすすめ商品
制度を使った住宅改修
制度の紹介
改修の事例
住宅相談のご案内
個別相談
ネット相談
バリアフリー住宅の設計者紹介
設計者紹介
イベントのご案内
セミナー、見学会など
リンク他