トップページ お問い合わせ サイトマップ
 
 
 
トップページ > バリアフリー住宅・リフォームのヒント・実例・商品など > 実例

Hさんの家

 

M'sエムズ設計室
松橋雅子

松橋雅子の紹介



 アプローチ    


改修前



改修後

 風除室・玄関    浴室


 改修前



 改修後



改修前


改修後
 台所    


改修前



改修後

 洗面    洗面〜トイレ


 改修前



 改修後



改修後

 トイレ    


改修前



改修後

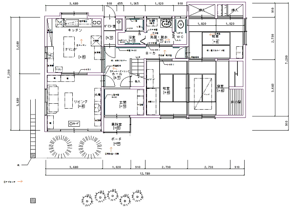
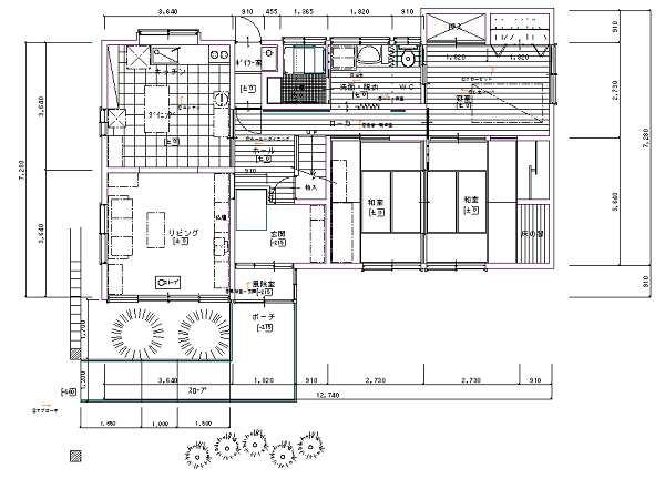
 平面図    


改修前平面図



改修後平面図

NPO法人高齢社会の住まいをつくる会

高住会とは?

入会について
会員紹介
関連書籍など
バリアフリー住宅・リフォームのヒント・実例・商品など
住まいづくりの流れ
ワンポイントアドバイス
実例
おすすめ商品
制度を使った住宅改修
制度の紹介
改修の事例
住宅相談のご案内
個別相談
ネット相談
バリアフリー住宅の設計者紹介
設計者紹介
イベントのご案内
セミナー、見学会など
リンク他